Tvorba 2D výkresové dokumentace staveb na základě 3D skenování je proces, při kterém se využívá digitální trojrozměrný model (3D model) získaný ze skenování a převádí se na 2D výkresy ve formátu CAD (Computer-Aided Design), např. do formátu AutoCAD DWG.
Po provedení 3D skenování stavby se získají detailní informace o geometrii a tvaru objektu ve formě mračna bodů pomocí specializovaného softwaru pro zpracování dat ze skeneru.
Následně se přistupuje k tvorbě 2D výkresů na podkladě mračna bodů. Tento proces obvykle zahrnuje několik kroků:
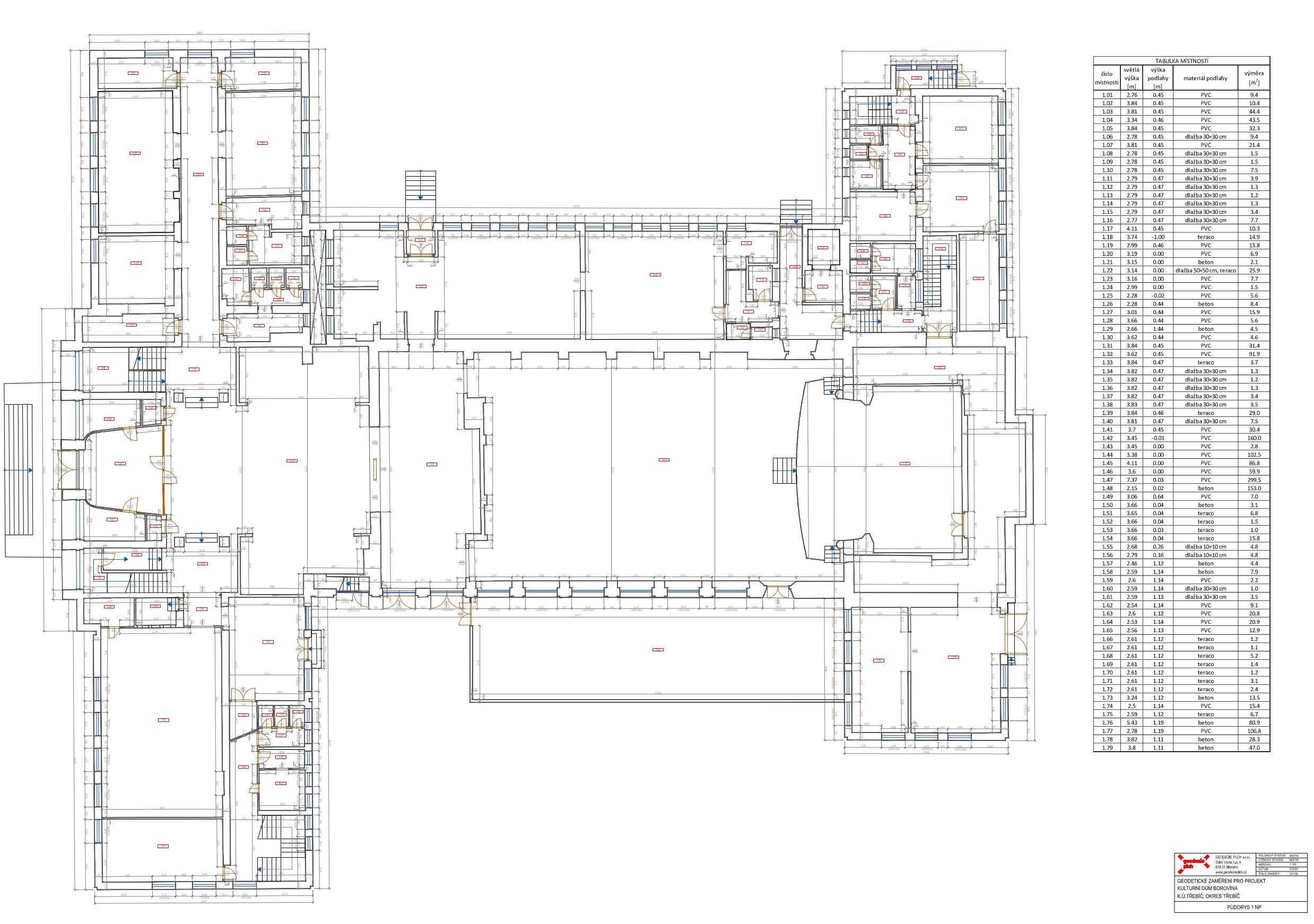
Pomocí software pro zpracování mračen bodů vytvoříme vhodné řezy mračnem jako jsou půdorysy a svislé řezy. Následuje zpracování v CAD softwaru, kdy z řezů vytváříme stavební výkresy.
Na 2D výkresy se přidávají rozměry, měřítka a anotace, popisy oken a dveří, zařizovací předměty apod.

Dokončením výkresů vzniká kompletní dokumentace stavby, která zahrnuje všechny relevantní výkresy - půdorysy, řezy a pohledy. Tato dokumentace slouží jako základ pro plánování, výstavbu, renovace a údržbu staveb, architektům a projektantům.
Tvorba 2D výkresové dokumentace staveb na podkladě 3D skenování umožňuje přesně zachytit geometrii a detaily stavby a převést je do formátu, který je vhodný pro další využití v projektování, stavebních pracích a správě nemovitostí.
















