
Služby
Digitalizace (pasport) stavby

Služby
Digitalizace (pasport) stavby

Služby
Digitalizace (pasport) stavby

Služby
Digitalizace (pasport) stavby
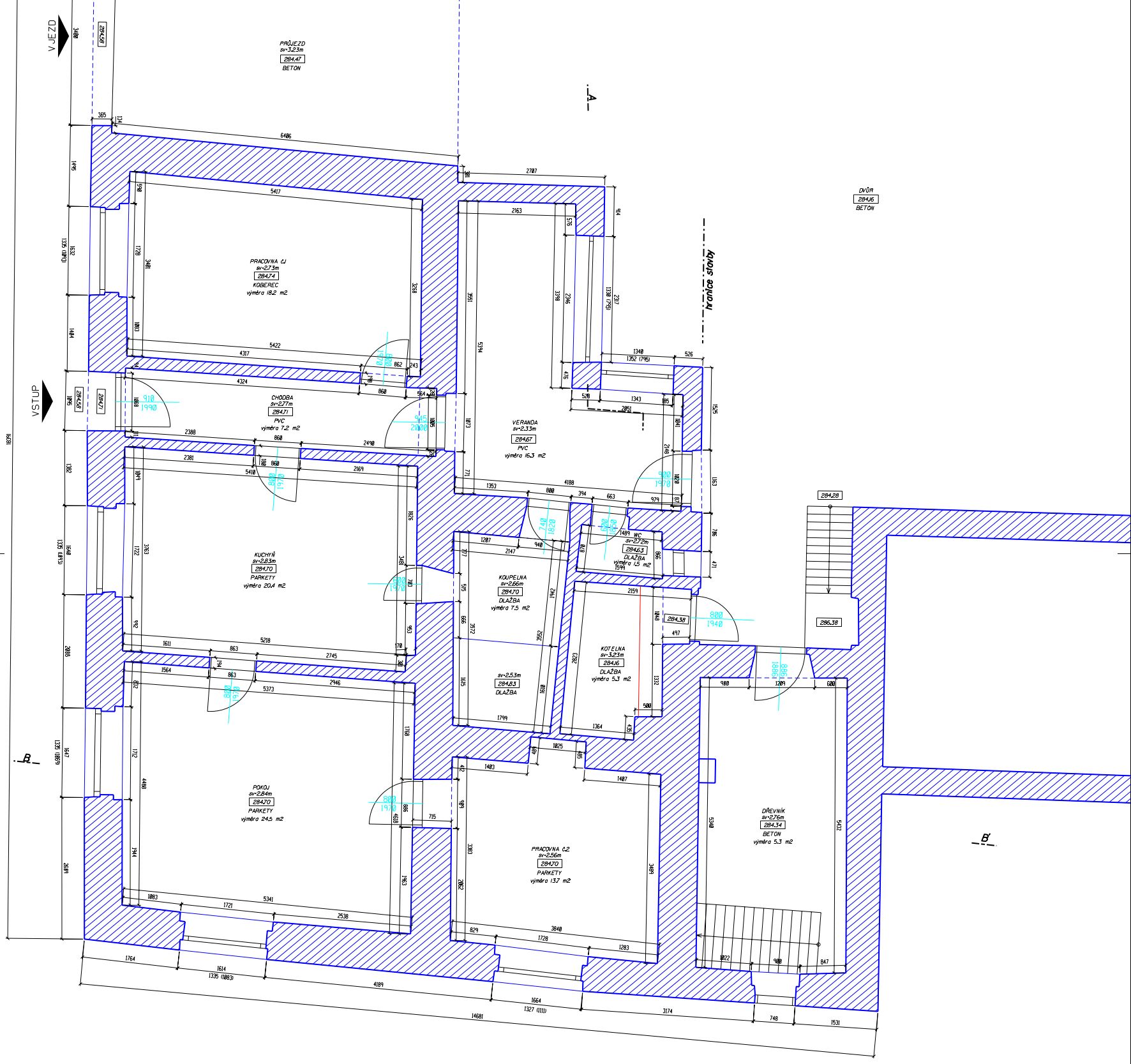
Zajišťujeme zaměření skutečného stavu budov a jejich digitalizaci pro tvorbu podkladů pro rekonstrukce, modernizace nebo změny využití.
Na základě zaměření vytváříme pasporty staveb, což jsou podrobné dokumentace aktuálního technického stavu objektu.
Tyto informace jsou klíčové pro architekty a projektanty při plánování a návrhu stavebních úprav nebo pro legalizaci stávajících staveb.
Výsledkem naší práce je kompletní stavební dokumentace buď ve 2D formátech CAD (DGN, DWG) nebo ve 3D formátech (Revit, IFC, Sketchup)

Geodezie pro projekty, Skenování a digitalizace
Geodezie pro projekty, Skenování a digitalizace
Geodezie pro projekty, Skenování a digitalizace
Neváhejte nás kontaktovat
s vaším projektem
Neváhejte nás kontaktovat
s vaším projektem
Reference
Co slíbíme, to platí.
Náš tým tvoří zkušení odborníci s bohatými znalostmi v oblasti geodézie.
©
2025
geodezie plch. Všetky práva vyhradené.
Co slíbíme, to platí.
Náš tým tvoří zkušení odborníci s bohatými znalostmi v oblasti geodézie.
©
2025
geodezie plch. Všetky práva vyhradené.
Co slíbíme, to platí.
Náš tým tvoří zkušení odborníci s bohatými znalostmi v oblasti geodézie.
©
2025
geodezie plch. Všetky práva vyhradené.











